Breadcrumbs

Installation: Wall Lift of Wallom 3

The required strength for fixing to the structural wall is 27kg

CTOUCH Wallom3 wall lift is used to mount a large touchscreen or monitor indoors in place. The lift function ensures that the viewing height is adjusted to the user. The lift should be used for a maximum of 1 min. at a time, followed by 19 min. rest, regardless of the load. Ignoring these instructions will dramatically reduce the system’s lifecycle.

image-20260102-141202.png
image-20260102-141229.png

1. Mark the height of the lift’s backplate

Remove the frame with electric lift from the box (WA) and place it against the wall in the way you would like it to be mounted. Use a pencil to mark the location on the top of the back wall mounting plate (WB1).

image-20260102-141237.png

2. Mark the mounting holes of the mounting plate (WB1) on the structural wall

Unscrew the bolts holding the two wall mounting plates together (WB1 & WB2) using the wrench (a) and Allen-key (b). Then place the back wall mounting plate (WB1) against your first marking lines. Mark at least 4 drill holes in the slots running down the center of the back wall mounting plate (WB1). Erase your first line for a clean result.

image-20260102-141245.png

3. Attach the wall mounting plate (WB1)

Lower the mounting plate (WB1) from the wall and drill at least four of your marked holes in the structural wall. Attach the wall mounting plate (WB1) to wall using appropriate screws. Mount to the wall using screws requires screws that can hold at least 27kg of weight. When fastening, ensure that the 4 small screw holes are at the top (marked with an arrow in the drawing).

image-20260102-141251.png

4. Install the supporting arms

Slide the support arms (WJ) through the upper frame (WA) and secure them from the front with 4x M8 washers (c) and 4x M8x30 bolts (e).

image-20260102-141257.png

5. Place the lift (WA) in the wall mounting bracket (WB1) and lock it with the small front plate (WB2)

Place the lift (WA) into the wall mounting bracket (WB1). Tighten the bolts you removed earlier to connect the small front plate (WB2) onto the wall mounting bracket (WB1), thereby holding the lift (WA) against the wall.

Hang the front panel (WC) on the front of the lift column. It should slide over the top of the foot, and the wings of the mounting plates, resulting in a secure fit without screws.

image-20260102-141304.png

6. Mount the VESA brackets (WH) on the back of the CTOUCH touchscreen

Screw the 4x 25mm standoffs (d) into the VESA screw-holes of the display at the desired height. Then use the 4x M8x20mm (f) or 4x M8x12mm (g) VESA bolts to mount the brackets (WH) onto the standoffs (d). This should add a distance of 25mm between the brackets (WH) and the display. Ensure that the brackets are mounted at the same height on the display. Securely tighten all VESA bolts (f or g) using the Allen Key (b).

image-20260102-141317.png

If you do not use the stand-offs, follow these steps:

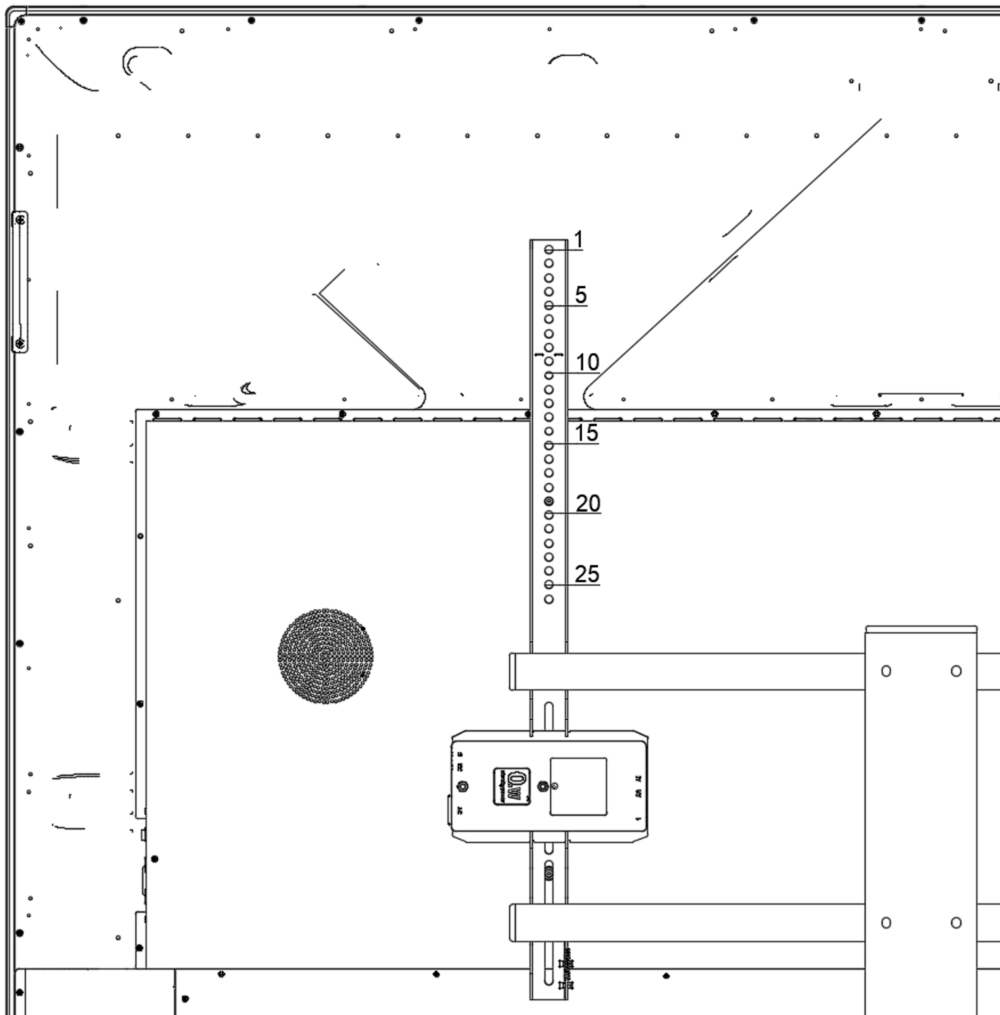
Use the table below to achieve the lowest possible position for the screen. For example, with an 86 inch NEO, position the top 2 VESA mounts on the 19th hole as shown in the image

Note: Make sure that there is a distance of at least 1cm between the bottom of the monitor and the top of the lift column (in the lowest position). This is to avoid collision between the lift column and the monitor.

Top VESA pos.

55 inch

65 inch

75 inch

86 inch

Canvas

26th hole

17th hole

5th hole

2nd hole

Neo

-

-

17th hole

19th hole

Riva

26th hole

18th hole

5th hole

2nd hole

image-20260102-141350.png
Canvas 86 inch display - shown with the Top VESA hole mounting at the 19th position.

In each of these positions, the estimated lowest height of the display from the floor is noted below:

Lowest point

55 inch

65 inch

75 inch

86 inch

Canvas

823mm

839mm

821mm

816mm

Neo

-

-

835mm

819mm

Riva

824mm

823mm

821mm

816mm

7. Suspending the monitor

Hang the monitor on the support arms (WJ) using the hooks on the VESA brackets (WH). Make sure that the hooks on the brackets (WH) connect completely with the holes in the support arms (WJ).

image-20260102-141444.png

 

8. Important! Slide the securing plate completely upwards

Slide the security plate of VESA brackets (WH) completely upwards. Preferably, hang a lock (WK) through the 2 holes to secure it even more. This ensures that the screen cannot come loose.

image-20260102-141451.png

 

9. Connect the motor cable (WD), The button control cable (WE1), and the power cable (WF) into the control box (WG)

  • Connect the lift column cable (WA) to the motor cable (WD). Connect the other end to input "1" on the black control unit.

  • Connect the button control cable (WE1) to input "A2" on the black control unit.

  • Connect the power cord (WF) to the "AC" input on the Black Control Unit.

  • Connect the power cord (WF) to a wall outlet. The required voltage is 230 V AC, 50 Hz.

For first use, press the lift button to lower the lift all the way down. From the lowest position, the lift can be adjusted to any height. If the panel is mounted horizontally, the button with the arrow pointing to the right is the down button.

image-20260102-141511.png

10. Mount the control box (WH) into the VESA bracket arm (WG)

Slide the control box (WH) into one of the VESA bracket arms (WG). There are grooves on the mounting plate of the control box (WH) which help to hold it in place in the VESA bracket arms (WG).

image-20260102-141536.png

11. Install the button control panel (WE2)

Install the button control (WE2) on the edge of the screen with 2 screws (h) and the bracket (i).

image-20260102-141541.png

 


Changes or modifications will void all warranties and exclude any liability. This user manual contains detailed instructions about your product. Pictures and illustrations in this manual are for reference only and may differ from the reality. Design and specifications are subject to change without notice.